西宮市五月ヶ丘 新築一戸建て 6号地

4,680万円

兵庫県西宮市五月ケ丘

阪急甲陽線「甲陽園」駅徒歩18分

阪急甲陽線「苦楽園口」駅徒歩26分

阪急今津線「門戸厄神」駅徒歩33分

価格
4,680万円
間取り
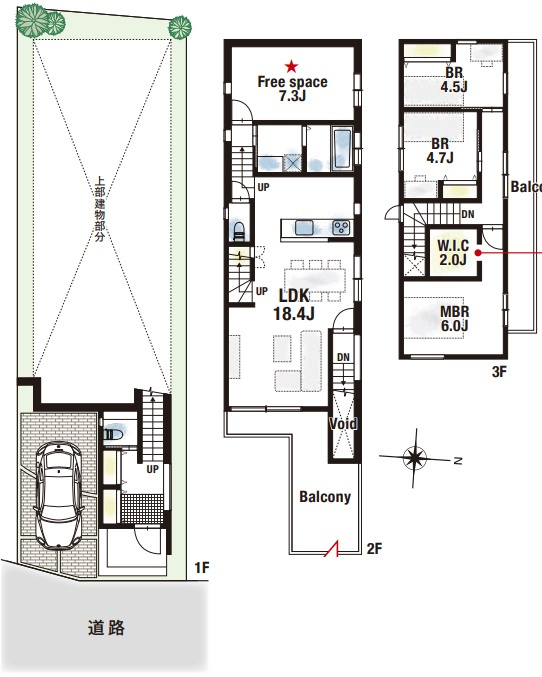
3LDK
土地面積
105.07㎡
所在地
兵庫県西宮市五月ケ丘
交通

阪急甲陽線甲陽園」駅 徒歩18分

阪急甲陽線苦楽園口」駅 徒歩26分

阪急今津線門戸厄神」駅 徒歩33分

建物面積
105.80㎡
築年月
-(-)

物件の特徴

  • TVモニタ付きインターホン

  • カウンターキッチン

セールスポイント

教育施設やスーパーが近く最適の住環境!
ウォークインクローゼット完備!
リビング収納付きでお部屋スッキリ!

ポイント

教育施設やスーパーが近く最適の住環境! ウォークインクローゼット完備! リビング収納付きでお部屋スッキリ!

基本情報

販売戸数
-
総戸数
-
間取り / 詳細
3LDK
LDK 21.2帖/洋室 4.9帖/洋室 4.5帖/洋室 6.3帖
向き
建物面積(坪数)
105.80㎡(32坪)
土地面積(坪数)
105.07㎡(31.78坪)
建ぺい率 /
容積率
60%/193%
築年月
-(-)
駐車場 / 月額
有(1台) / 0円
土地権利
所有権
土地
(敷金 / 保証金)
- / -
建物構造
木造 / 3階建
傾斜地部分面積
-
路地状敷地
-
私道負担面積
-
セットバック
高圧線下面積
-
施工会社
-
用途地域
第一種中高層住居専用
地目 / 地勢
宅地 / -
接道状況
-(東 公道 4.8m)
国土法届出要否
不要
都市計画
市街化区域
総区画数 /
販売区画数
-/-
現況
未着工
その他
法令上の制限
-
取引態様
仲介
引渡し
相談
取引条件の
有効期限
2026年03月26日

設備条件

設備条件
  • 陽当り良好 / 閑静な住宅地 / バリアフリー / フローリング / バルコニー / 都市ガス / 公営水道 / 公共下水 / 両面バルコニー / システムキッチン / カウンターキッチン / 追焚機能浴室 / トイレ2ヶ所 / 浴室1坪以上 / ウォークインクロゼット / TVモニタ付インターホン / 複層ガラス
設備(その他)
    -

その他

物件番号
87457988
管理コード
-
建築確認番号
-
情報更新日
2026年03月12日
次回更新予定日
2026年03月26日
取扱会社
  • 株式会社ハウジングプラザ 阪神店
  • 兵庫県伊丹市寺本3丁目17番地1 
  • TEL:0120-378-001
  • 国土交通大臣 (1) 第10394号
  • 全日本不動産保証協会
備考
〇甲陽園小学校・・・徒歩14分
〇上ケ原中学校・・・徒歩10分

西宮市五月ヶ丘 新築一戸建ての他の物件

  1. 4号地

    3LDK (113.21㎡)

    4,980万円(145.44万円/坪)

  2. 5号地

    3LDK (113.21㎡)

    4,980万円(145.44万円/坪)

周辺施設

  • 生活協同組合コープこうべ コープ甲陽園の画像

    スーパー

    生活協同組合コープこうべ コープ甲陽園

    734m(10分)

支払いシミュレーション

月々の支払額
購入希望物件価格
万円
頭金
万円
金利
%
返済額(ボーナス1回分)
万円
返済期間

※ボーナスは自動で年2回分で計算されます。

近隣の物件

  1. 西宮市今津社前町 中古一戸建て

    西宮市今津社前町

    3LDK (74.92㎡)

    3,799万円

  2. 西宮市今津野田町 中古一戸建て

    西宮市今津野田町

    4LDK (118.44㎡)

    3,599万円

  3. 西宮市青木町 中古一戸建て

    西宮市青木町

    4LDK (86.66㎡)

    4,788万円

  4. 西宮市北六甲台4丁目 新築一戸建て

    西宮市北六甲台4丁目

    4LDK (91.40㎡)

    4,190万円

よく見られている物件

  1. 岸和田市岸城町 未入居

    岸和田市岸城町

    3LDK (98.73㎡)

    3,650万円

  2. 泉南市新家 2期 未入居

    泉南市新家

    4LDK (104.33㎡)

    2,698万円

  3. 14(土)15(日)現地説明会 堺市美原区平尾 限定1邸

    堺市美原区平尾

    3LDK+S(納戸) (97.19㎡)

    2,280万円

  4. 尼崎市食満 新築一戸建て

    尼崎市食満3丁目

    1LDK+4S(納戸) (116.91㎡)

    3,880万円

西宮市五月ヶ丘 新築一戸建て

西宮市五月ヶ丘 新築一戸建て

4,680万円

-

3LDK(105.80㎡)

お気軽にお問い合わせください

無料お問い合わせ

株式会社ハウジングプラザ 阪神店

0120-378-001

09:00~20:00

(休:年中無休)