神戸市灘区中原通 新築一戸建て

4,980万円

兵庫県神戸市灘区中原通2丁目

阪急神戸本線「王子公園」駅徒歩8分

東海道本線「摩耶」駅徒歩10分

阪神本線「西灘」駅徒歩15分

価格
4,980万円
間取り/建物面積
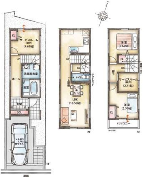
2LDK+2S(納戸)/94.25㎡
所在地
兵庫県神戸市灘区中原通2丁目
築年
2025年4月(新築)
駐車
有(1台)
交通

阪急神戸本線王子公園」駅 徒歩8分

東海道本線摩耶」駅 徒歩10分

阪神本線西灘」駅 徒歩15分

神戸市灘区中原通 新築一戸建ての基本情報

物件名
神戸市灘区中原通 新築一戸建て
価格
4,980万円
建物面積
94.25㎡
土地面積
22.47坪(74.30㎡)
築年月
2025年4月(新築)
総戸数
1戸
所在地
兵庫県神戸市灘区中原通2丁目
交通

阪急神戸本線王子公園」駅 徒歩8分

東海道本線摩耶」駅 徒歩10分

阪神本線西灘」駅 徒歩15分

神戸市灘区中原通 新築一戸建ての詳細情報

設備条件
  • 閑静な住宅地
設備(その他)
    -
駐車場/月額
有(1台)/0円
土地権利
所有権
国土法届出
不要
用途地域
近隣商業
取引態様
仲介
引渡し
即時

神戸市灘区中原通 新築一戸建てで募集中の物件

  1. 1区画

    28.51坪 (94.25㎡)

    4,980万円(174.68万円/坪)

周辺施設

  • 幼保連携型認定こども園なかはらこども園の画像

    幼稚園

    幼保連携型認定こども園なかはらこども園

    444m(6分)

  • 中井病院の画像

    内科

    中井病院

    640m(8分)

近隣の物件

  1. 神戸市灘区上野通3丁目

    2SLDK (95.58㎡)

    5,780万円

  2. 神戸市灘区五毛通3丁目

    3LDK (103.63㎡)

    5,680万円

  3. 神戸市灘区高尾通4丁目

    2SLDK (112.61㎡)

    5,580万円

  4. 神戸市灘区神ノ木通3丁目

    3LDK (89.09㎡)

    5,480万円

神戸市灘区中原通 新築一戸建て

お気軽にお問い合わせください

無料お問い合わせ

株式会社ハウジングプラザ 阪神店

0120-378-001

09:00~20:00

(休:年中無休)