泉大津市清水町 中古一戸建て

1,599万円

大阪府泉大津市清水町

南海本線「忠岡」駅徒歩17分

南海本線「泉大津」駅徒歩18分

南海本線「松ノ浜」駅徒歩32分

価格
1,599万円
間取り
3LDK
土地面積
101.39㎡
所在地
大阪府泉大津市清水町
交通

南海本線忠岡」駅 徒歩17分

南海本線泉大津」駅 徒歩18分

南海本線松ノ浜」駅 徒歩32分

建物面積
85.05㎡
築年月
2003年7月(築22年)

物件の特徴

  • バストイレ別

  • 室内洗濯機置場

  • カウンターキッチン

セールスポイント

泉大津市清水町の閑静な住宅街にあります。
3LDKで駐車も2台可能です!南向きなので日当たりも良好です。

基本情報

販売戸数
1戸
総戸数
1戸
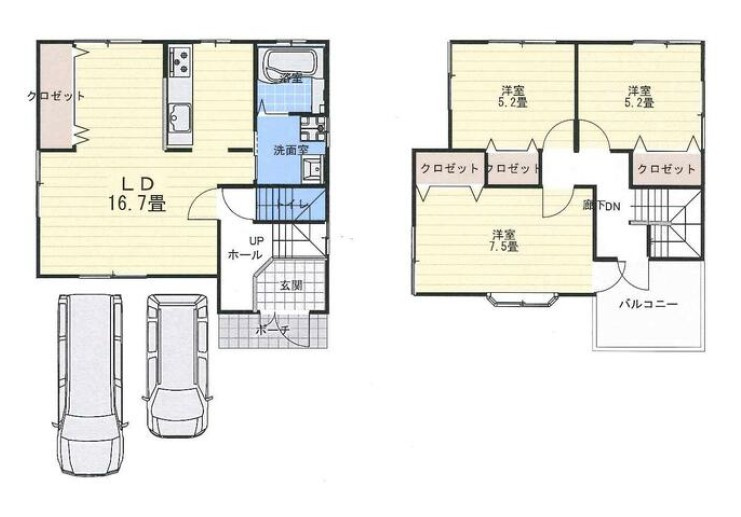
間取り / 詳細
3LDK
LD 16.7帖/洋室 7.5帖/洋室 5.2帖/洋室 5.2帖
向き
建物面積(坪数)
85.05㎡(25.72坪)
土地面積(坪数)
101.39㎡(30.67坪)
建ぺい率 /
容積率
60%/200%
築年月
2003年7月(築22年)
土地権利
所有権
土地
(敷金 / 保証金)
- / -
建物構造
木造 / 2階建
傾斜地部分面積
-
路地状敷地
-
私道負担面積
-
セットバック
無 記載なし
高圧線下面積
-
施工会社
-
用途地域
準工業
地目 / 地勢
宅地 / -
接道状況
-(南 公道 4.7m 間口 7.3m)
国土法届出要否
不要
都市計画
市街化区域
総区画数 /
販売区画数
1区画/1区画
現況
空家
その他
法令上の制限
-
取引態様
仲介
引渡し
即時
取引条件の
有効期限
2026年02月23日

設備条件

設備条件
  • 閑静な住宅地 / 室内洗濯機置場 / フローリング / バルコニー / 都市ガス / 公営水道 / 公共下水 / 電気有 / 駐車2台可 / システムキッチン / カウンターキッチン / バス・トイレ別 / 追焚機能浴室 / 洗面台 / トイレ2ヶ所 / 浴室1坪以上
設備(その他)
    -

その他

物件番号
94908315
管理コード
-
建築確認番号
-
情報更新日
2026年02月09日
次回更新予定日
2026年02月23日
取扱会社
  • 株式会社ハウジングプラザ 南大阪店
  • 大阪府堺市北区百舌鳥赤畑町3丁166-4 
  • TEL:0120-161-001
  • 国土交通大臣 (1) 第10394号
  • 全日本不動産保証協会
備考
〇泉大津市立戎小学校…徒歩8分
〇泉大津市立誠風中学校…徒歩28分

支払いシミュレーション

月々の支払額
9.6
購入希望物件価格
万円
頭金
万円
金利
%
返済額(ボーナス1回分)
万円
返済期間

※ボーナスは自動で年2回分で計算されます。

近隣の物件

  1. 14(土)15(日)現地説明会 泉大津市助松町 ラスト1邸

    泉大津市助松町3丁目

    3SLDK (98.00㎡)

    2,980万円

  2. 泉大津市助松町 第3期 新築一戸建て

    泉大津市助松町3丁目

    3SLDK (98.00㎡)

    2,980万円

  3. 泉大津市寿町 中古一戸建て

    泉大津市寿町

    4LDK (103.68㎡)

    4,500万円

  4. 泉大津市池浦町 新築一戸建て

    泉大津市池浦町5丁目

    3LDK (83.65㎡)

    3,198万円

泉大津市清水町 中古一戸建て

泉大津市清水町 中古一戸建て

1,599万円

-

3LDK(85.05㎡)

お気軽にお問い合わせください

無料お問い合わせ

株式会社ハウジングプラザ 南大阪店

0120-161-001

09:00~20:00

(休:水曜日)